Aller au contenu principal
Réf. : 50065-916
Dernière mise à jour de l’annonce : 07/11/2025

Vente

46 500 € (honoraires de négociation inclus)
Honoraires à la charge du vendeur
50660 Quettreville-sur-Sienne
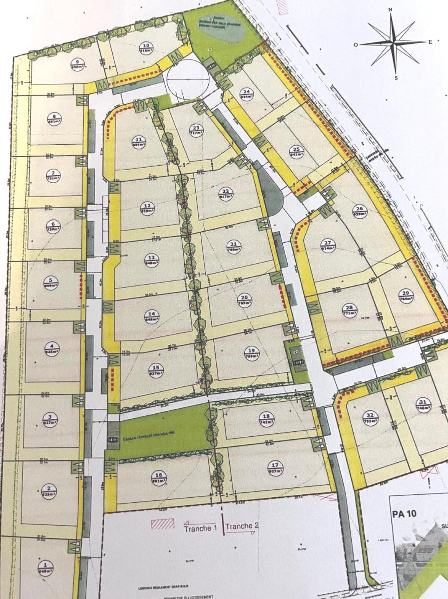
 Situé à 5 mn de Montmartin sur Mer, sur la commune d'Hérenguerville. LIBRE DE TOUS CONSTRUCTEURS 31 parcelles constructibles, viabilisées.  Plusieurs surfaces vous sont proposées : de 717 m² au prix de 46.500 €, à 948 m² au prix de 59.000 €, honoraires de négociation inclus, à charge vendeur.  Assainissement individuel à prévoir.  Les informations sur les risques auxquels ce bien est exposé sont disponibles sur le site Géorisques : www. georisques. gouv. fr

Conditions de vente

Prix HNI :  46 500 €
(honoraires de négociation inclus)
Type d'honoraires :  À la charge du vendeur

Contact

Office :  NOTAIRES & ENCHERES
Négociateur : KULTERER Sandrine
Téléphone : 02 33 47 21 31
Adresse : 14 rue Franquet
Code postal :  50590
Ville :  MONTMARTIN SUR MER